Progress happening on the North stairwell for the temp bridge.

20230330_113351.jpg
 
Is the bridge to temporarily replace the tunnel (which always seems to smell like pee)?
It's not a straight yes or no, but the short answer is no. But eventually yes, sort of.

The entire main concourse building of the station will be to the west of the existing tunnel, so it isn't being removed within the foreseeable future. My understanding is that the reason for the bridge is mainly to spread people out, because without the bridge, the only access point to the platforms is the existing tunnel, which is now at one end of the 350 metre long platforms. The new bridge is located between a third and half of the way down the platforms from the tunnel.

To add to that, I would also imagine some work in the far future, such as track realignment and pouring of new platforms, which will extend east into the current station area, will require at least temporary closure of the tunnel. And of course, the tunnel, along with the bridge, will be removed permanently at some point.

In the rendering here, you can see the GO sign which is around the same spot as the tunnel and current station building

Screenshot 2023-04-07 185608.png
 
That's what the tunnel is for, duh 😁
Will the tunnels, platforms, stairs, elevators, etc. be cleaned at least once a day?

Or will there be "efficiencies" in cleaning with the private sector (with profits and dividends built in for the corporate owners), with only an annual cleaning?
 
A bundle of photos from today

From Atlantic Avenue
20230419_175507.jpg


In between old and new tunnel stairwells, looking at the most recent ped bridge staircase.
20230419_175310.jpg


They're building 4 shelters at the east end of the south GO platform
20230419_175042.jpg


and it looks like similar shelters are being built where the new GO/Ontario Platform will be located, adjacent to the new staircase for temporary ped bridge.
20230419_174932.jpg


the north end of the top of the north ped bridge staircase is open ended, which must mean there will be at least one more staircase down north of here.
20230419_175028 (1).jpg


Looking west at the 2 ped bridge staircases.
20230419_174939 (1).jpg
 
SPA docs now have a live link and a few rudimentary drawings to mull over; not as interesting as the pretty renders for the most part, but there are some tidbits in them.


From the above:

1686658073082.png


1686658115115.png


1686658152663.png


1686658182801.png

1686658209300.png


1686658239562.png


1686658277138.png


1686658317206.png


1686658347231.png


1686658377386.png


1686658412468.png


'
1686658449431.png
 
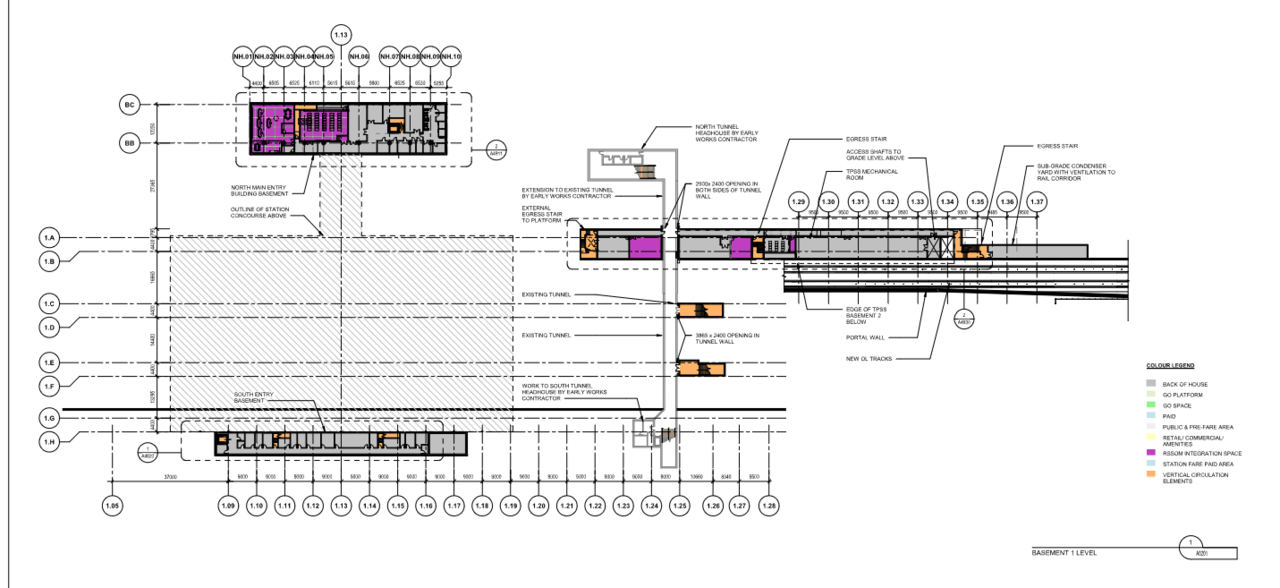
Interesting how they are only delivering a single block of the Liberty New Street as a part of it.. Wonder if they are telling the City that they are still on the hook for the rest of the street.
 
SPA docs now have a live link and a few rudimentary drawings to mull over; not as interesting as the pretty renders for the most part, but there are some tidbits in them.


From the above:

View attachment 484891

View attachment 484892

View attachment 484893

View attachment 484894
View attachment 484895

View attachment 484896

View attachment 484897

View attachment 484898

View attachment 484899

View attachment 484900

View attachment 484901

'View attachment 484902
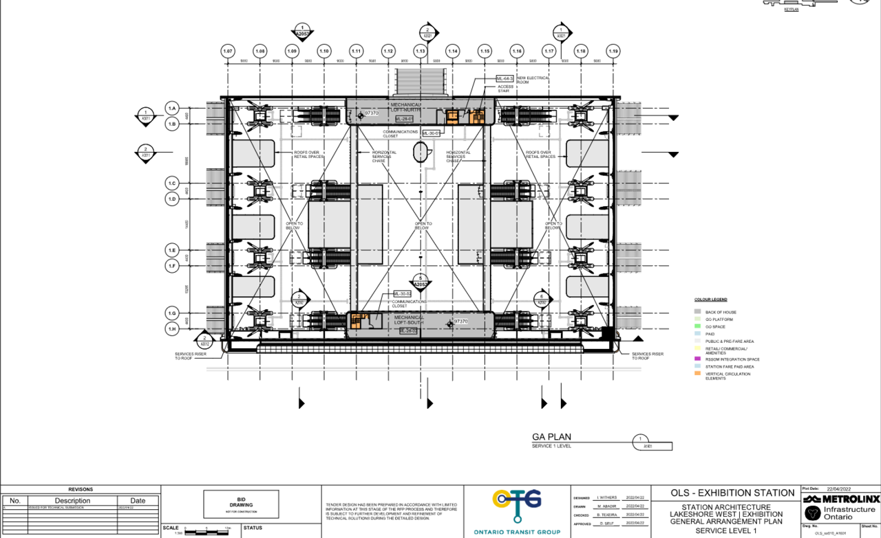
Not a lot of space on the south side of the tracks for the streetcars to extend through to Dufferin (and beyond)?
 
Not a lot of space on the south side of the tracks for the streetcars to extend through to Dufferin (and beyond)?

I believe the WWLRT has been provided for in the design; though that may not be evident in these drawings.
 
Interesting how they are only delivering a single block of the Liberty New Street as a part of it.. Wonder if they are telling the City that they are still on the hook for the rest of the street.
The new street is a City project, not a Metrolinx one so it's always been up to the City to deliver. I wouldn't be surprised to see Metrolinx send a bill for doing the part in front of the station.
 

Back
Top