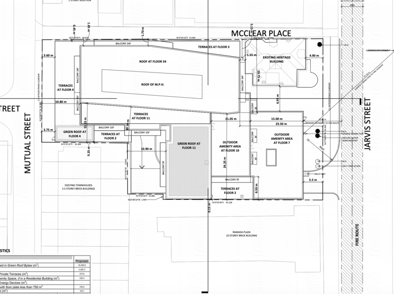
Also is it just me or does it not fill the whole site. It seems like there is an empty gap between it and the hotel.

It pretty much does take up all the property.

Screen-Shot-2019-09-20-at-10-16-04-AM.png
 
Amazingly, a security guard onsite says that they're going to keep at least the facade of the burned house. Construction work going on inside the house's shell would seem to corroborate this.
…and the fact that the Site Plan Approval application which was submitted after the fire still has the house in it.

42
 
So it's literally burned and demolished down to the facade layer of the house now. The facadism here is going to end up as absurd as One Bedford and RCMI.
 
Hmm? i see there is not much left of the house which was suppose to be a standalone structure,
unless they can mimic what disappeared it unfortunately will get demolished
 
Let's hope it gets demolished. Unfortunately, they probably would have done so already.
 
If it were to be demolished, every builder in the City would torch every heritage building they were required to incorporate into their developments, so thankfully…

of course it won't be demolished!

42
 
I don't care for the insinuation that every heritage property owner will torch their buildings. It was an awkward attempt of heritage inclusion. Is spite the only purpose to recreate that awkward situation with new construction? Wouldn't hefty fines be a better recourse for arson?
 

Back
Top