It's rubbish. Walk around that area and you'll understand how a boring glass window wall at grade does little to lift the neighbourhood.

8 Cumberland's tower design is even worse. Yikes.

It's boring because it's bare and empty, and the wind on Flatbush is unbearable.
 
The report indicates there will be some modifications requested by the city, and i expect height will be one of them.
 
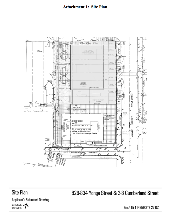
From the report

attachment.php


attachment.php


attachment.php


attachment.php
 

Attachments

  • Screen Shot 2015-04-01 at Wednesday Apr 1, 2015 12.24.50 PM.png
    Screen Shot 2015-04-01 at Wednesday Apr 1, 2015 12.24.50 PM.png
    149.2 KB · Views: 1,891
  • Screen Shot 2015-04-01 at Wednesday Apr 1, 2015 12.24.42 PM.png
    Screen Shot 2015-04-01 at Wednesday Apr 1, 2015 12.24.42 PM.png
    116.2 KB · Views: 1,831
  • Screen Shot 2015-04-01 at Wednesday Apr 1, 2015 12.24.32 PM.png
    Screen Shot 2015-04-01 at Wednesday Apr 1, 2015 12.24.32 PM.png
    154.5 KB · Views: 1,859
  • Screen Shot 2015-04-01 at Wednesday Apr 1, 2015 12.24.22 PM.png
    Screen Shot 2015-04-01 at Wednesday Apr 1, 2015 12.24.22 PM.png
    208.7 KB · Views: 1,876
It's one thing to disagree about the fact that height will be an issue here but to pretend to be ignorant of that fact is stretching it Automation.
 
The report indicates there will be some modifications requested by the city, and i expect height will be one of them.

1 Yorkville, which is to the north of this building and thus further from the Yonge & Bloor height peak, was just approved at 183.2 metres, so this shouldn't have much trouble on height. Whether density is an issue is a different question.
 
They don't seem to like the colonnade on the west laneway. They want to ensure an open air connection to Town Hall Square.
 
Kinda seems like they might just be trying to encourage that the building is not as wide east to west as it currently is. As it makes the passage in behind the property more claustrophobic. Also if it was not as deep/ wide it may also save some views for its neighbour.

Maybe it will get thinner and taller. Sounded like they were more concerned with its massing.

I love how thin it is at side profile. I may keep imagining colour in the renderings but it seems like this could be more lavender than blue which would be nice.
 
From last night's meet-and-greet at the Park Hyatt:

IMG_7234.jpg


IMG_7236.jpg


42
 

Attachments

  • IMG_7234.jpg
    IMG_7234.jpg
    188.8 KB · Views: 1,548
  • IMG_7236.jpg
    IMG_7236.jpg
    201.6 KB · Views: 1,570
I wish developers would try to have more Fun on Yonge. Get a little crazy, you couldn't really go wrong. Teeple would be great, as is Snohetta.
 

Back
Top