From June 2023


Lets see what Albert gave us...........

From the Cover Letter:

1700685440170.png


@Art Tsai will wish to make note of any changes

***

Some enlarged renders:

1700685725058.png



1700685763535.png


1700685798895.png
 
The new renderings was added to the database. The storey count changed from 27 and 26 storey to 28 & 27 storey. The height changed from 97.01m & 93.76m to 97.01m to 93.76m/ 646 units to 648 units. The parking count changed from 233 parking to 213 parking.

Rendering taken from the architectural plan via SPA
 
Sooo..

Here we all think @AlbertC is just being a nice guy, and updating us all on this application................

But what we didn't know, is that he has always wanted to see @Art Tsai re-do the database for the same application two days in a row........... :p

We know this............because Albert completely omitted the Committee of Adjustment filing made for the development only the day before his post!

(Most recent plans noted as November 21st, 2023)

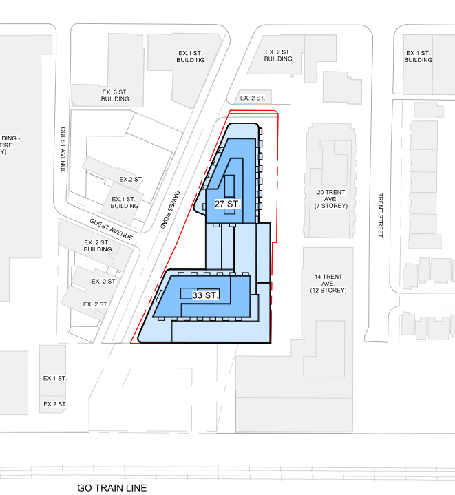
The applicant is seeking a height increase here to 33s and 27s

The full updated stats:

1700737475153.png


1700737510804.png



1700737560536.png
 
Sooo..

Here we all think @AlbertC is just being a nice guy, and updating us all on this application................

But what we didn't know, is that he has always wanted to see @Art Tsai re-do the database for the same application two days in a row........... :p

We know this............because Albert completely omitted the Committee of Adjustment filing made for the development only the day before his post!

(Most recent plans noted as November 21st, 2023)

The applicant is seeking a height increase here to 33s and 27s

The full updated stats:

View attachment 522390

View attachment 522391


View attachment 522392

Is this a typical number of parking spaces for a development next to multiple transit connections?
 
Is this a typical number of parking spaces for a development next to multiple transit connections?

0.2 spaces per unit (what's provided here) would not be unusual in such a spot, outside the core. It's not wildly high.
 
A quick note on what's up here (or not).

From the latest Legion newsletter:

View attachment 466502

As at Dec' 23, I am told there was no lease extension, and the Legion will have to be out on March 31st of this year.

No sign of any permit applications for demo or building yet.
 
February resubmission here. This is now considered 34 & 28-storeys with the presence of indoor amenity on the lower mech levels. Additional changes as follows:
  • Total units decreased from 772 to 769
  • Bicycle parking decreased from 772 to 771
  • Vehicular parking decreased from 213 to 210
p16_562.jpg

p1_1.jpg

p2_4.jpg
p2_5.jpg
p2_6.jpg
p2_7.jpg
 
A couple of add-ons for the above, here's the Material Board:

1710176112637.png


Also, some interesting curiosity from the Landscape Plan:

1710176444136.png


Balsam Fir as a Toronto street tree? That's got to be a first.....

Eastern Hemlock in the Pops too.

The focus here is supposedly on native..........but River Birch is not native anywhere near Toronto, that belongs several hundred km to the south.

I'm fascinated that they're ambitious enough to try to get Canada Yew to grow in these conditions but choose a non-native Juniper where the native would do fine.

Soil volumes are good, all tree trenches/planters will be irrigated!
 
I was on Danforth this morning - looked down Dawes as I was passing. It looked like there was some activity on this site and I was going to get back later to see if that was true. @TwinHuey posted some shots of The Dawes across the road and it does look like a few machines have shown up if I'm seeing that correctly.
 
I was on Danforth this morning - looked down Dawes as I was passing. It looked like there was some activity on this site and I was going to get back later to see if that was true. @TwinHuey posted some shots of The Dawes across the road and it does look like a few machines have shown up if I'm seeing that correctly.
I was wondering what that was across the street....now that I'm aware of this thread, I'll grab some better shots next time I'm driving by....

DJI_0037-2.jpeg
 
I was on Danforth this morning - looked down Dawes as I was passing. It looked like there was some activity on this site and I was going to get back later to see if that was true. @TwinHuey posted some shots of The Dawes across the road and it does look like a few machines have shown up if I'm seeing that correctly.

As per the most recent newsletter from the Legion, they have vacated as of the beginning of this month:

1713294567284.png



There are, however, no permits showing as applied for, for demolition or construction on this site.

***

I assume you were noticing equipment over at 10 Dawes.
 
As per the most recent newsletter from the Legion, they have vacated as of the beginning of this month:

View attachment 556912


There are, however, no permits showing as applied for, for demolition or construction on this site.

***

I assume you were noticing equipment over at 10 Dawes.
In the picture it looks like there is a skid steer and a few other things on the north portion of this site (the site where the old home hardware (?) use to be). But I'm probably mistaken in how I'm reading the footprint for 9.
 
In the picture it looks like there is a skid steer and a few other things on the north portion of this site (the site where the old home hardware (?) use to be). But I'm probably mistaken in how I'm reading the footprint for 9.

No, you're correct, now that I'm looking there is equipment present on that site.

Though given the absence of permits, one wonders what for...............
 

Back
Top