With any luck, Can Alfa would sell the site and maybe we could get a redesign but that would just be wishful thinking....?
I'm not even opposed to greater density on the site if the design and public realm giveback is worth it.
I'd say, have nothing to do with condos there and keep that whole heritage warehouse for a year round market place
 
The existing building reminds me of a Latin American central market. It should be preserved, and I am pretty sure it's internal space could be used very well and very profitably. Oh well.
 
Fresh lobbying on this one:

Details for Subject Matter Registration: SM32694​


Business/Organization name

Collecdev Inc.

Decision(s) or issue(s) to be lobbied

80 Lynn Williams Street

1639060115329.png
 
This could be a great sign if CollecDev want to do something different from the atrociously crap plan from Can-alfa.

As much as liberty village is swimming in density, giving a little more here in return for some excellent heritage and public realm should be a no brainer. LV doesn't suck because of its density. It sucks because its public realm is essentially non-existent apart from a soon to be ok-ish park.
 
Back from the dead in a much different incarnation, but still knocking down a portion of the heritage warehouse.

New proponent Shiplake
New architect: gh3
New height: 43s
Tenure: Purpose-Built Rental
Units: 588


@Koops65 just for you, I'm not even finished by coffee yet.

From the Docs:

1698150226503.png


1698150271167.png


Contextual Massing:

1698150368227.png


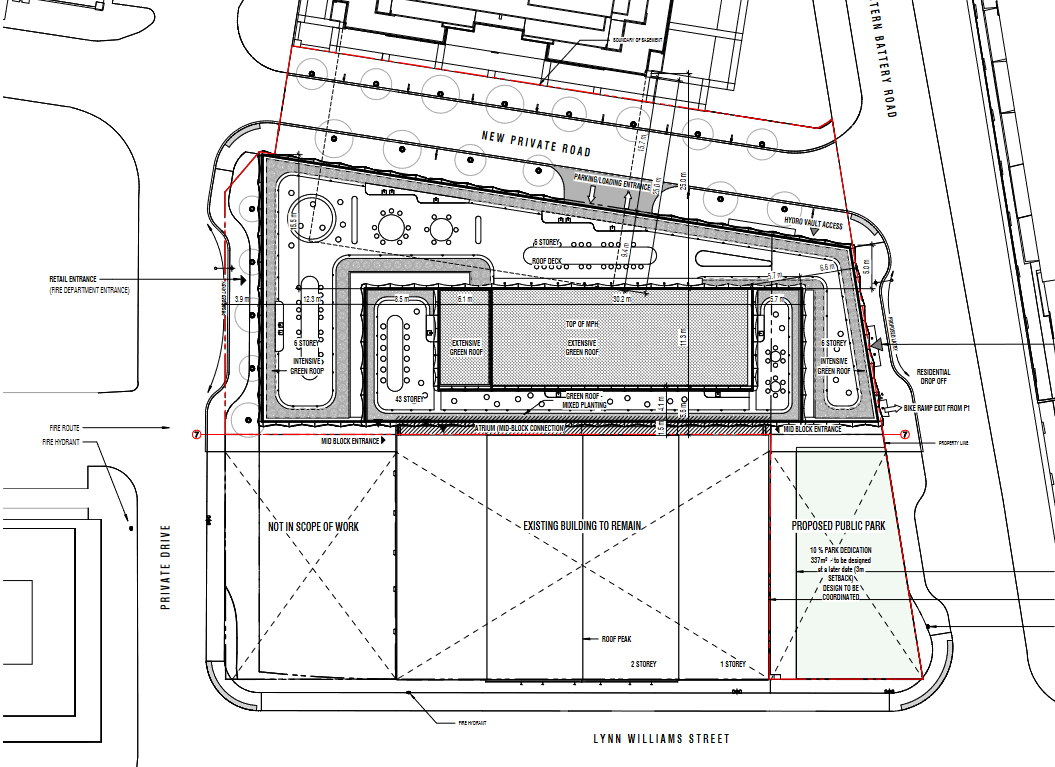
Site Plan:

1698150502399.png



Ground Floor Plan:

1698150551876.png


1698150642191.png


1698150814150.png


Elevator Ratio: 4 Elevators, 588 units, 0.68 elevators per 100 units ..... @ProjectEnd will love that.

Parking Ratio: (resident) 0.12

Comments:

Architecturally an improvement from the previous proposal to be sure; though still removes some heritage.

Elevator Ratio is entirely unacceptable.
 
Thanks! Will be on the SSP diagram section and then my Toronto Model ASAP...
Back from the dead in a much different incarnation, but still knocking down a portion of the heritage warehouse.

New proponent Shiplake
New architect: gh3
New height: 43s
Tenure: Purpose-Built Rental
Units: 588


@Koops65 just for you, I'm not even finished by coffee yet.

From the Docs:

View attachment 515183

View attachment 515184

Contextual Massing:

View attachment 515185

Site Plan:

View attachment 515186


Ground Floor Plan:

View attachment 515189

View attachment 515191

View attachment 515192

Elevator Ratio: 4 Elevators, 588 units, 0.68 elevators per 100 units ..... @ProjectEnd will love that.

Parking Ratio: (resident) 0.12

Comments:

Architecturally an improvement from the previous proposal to be sure; though still removes some heritage.

Elevator Ratio is entirely unacceptable.
It would be great if they could get density built here while maintaining the full heritage structure. From an Engineering standpoint, would it be feasible (without being unreasonably expensive) to suspend the center portion of the building over the existing heritage structure? Presumably it would require taking down the structure brick by brick and reassembling it (the way they built the new Loblaws at Bathurst and Lake Shore)
 
It would be great if they could get density built here while maintaining the full heritage structure. From an Engineering standpoint, would it be feasible (without being unreasonably expensive) to suspend the center portion of the building over the existing heritage structure? Presumably it would require taking down the structure brick by brick and reassembling it (the way they built the new Loblaws at Bathurst and Lake Shore)

I'm not an engineer, so I would let those who are speak to the technical feasibility.

I do agree it would be nice to see more/all of the extant structure saved.

I will say though, I don't think 'suspend' is quite the right word, in that, any towered has to be anchored in the ground somewhere, certainly one can cantilever, but this is a material amount of space, and I can't imagine you're not looking at new columns of some kind, somewhere; which presumably would either be in front of the heritage structure, or within it.
 


80-86 Lynn Williams Street and 70 Western Battery Road - Community Consultation Meeting


Thursday, December 7, 2023 6:00 PM - 7:30 PM
(UTC-05:00) Eastern Time (US & Canada)

This virtual community consultation meeting will introduce the application at 80-86 Lynn Williams Street and 70 Western Battery Road. The application is proposes a 43-storey mixed use building with 588 purpose built rental units. Attendees will be able to ask questions and provide their comments on their proposal.
 
Last edited:

Back
Top