Sorry, Northern, yes, I edited my post to say "within a one block vicinity." I think this level of density would only be appropriate at Pape and Broadview, with mid-rises along the remainder of the strip.

No worries.

***

Would add though, I think the streetwall (meaning height at podium level) is still a bit much; you can go 35 floors, but have the building step back after say four to six storeys. So it doesn't seem so overwhelming when you walk beside it.
 
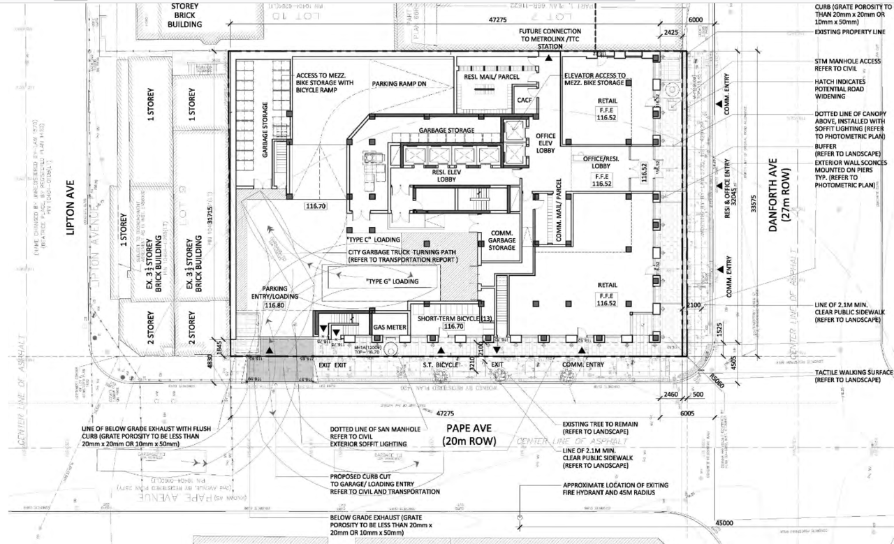
Is this in reference to this project? The podium height is 4 storeys and is less than 80% of the ROW which is the guideline for mid rise set backs. The podium also is all office space too, which we should be protecting especially at this intersection.

The tower is also much more setback than typical - 9m from Pape and 7m from Danforth.
Quote Reply
 
Is this in reference to this project? The podium height is 4 storeys and is less than 80% of the ROW which is the guideline for mid rise set backs. The podium also is all office space too, which we should be protecting especially at this intersection.

The tower is also much more setback than typical - 9m from Pape and 7m from Danforth.
Quote Reply

The renderings certainly don't convey that. Fair point though.

The renderings give the feel of a building w/near zero setback from the podium.

Edit to add:

I can figure this out myself.........but I'm tired, LOL.......is the tower setback from the podium inclusive or exclusive of the balconies.

That makes a difference as people will perceive the set back as the closest physical manifestation of the tower (balcony panel)
 
The renderings certainly don't convey that. Fair point though.

The renderings give the feel of a building w/near zero setback from the podium.

Edit to add:

I can figure this out myself.........but I'm tired, LOL.......is the tower setback from the podium inclusive or exclusive of the balconies.

That makes a difference as people will perceive the set back as the closest physical manifestation of the tower (balcony panel)

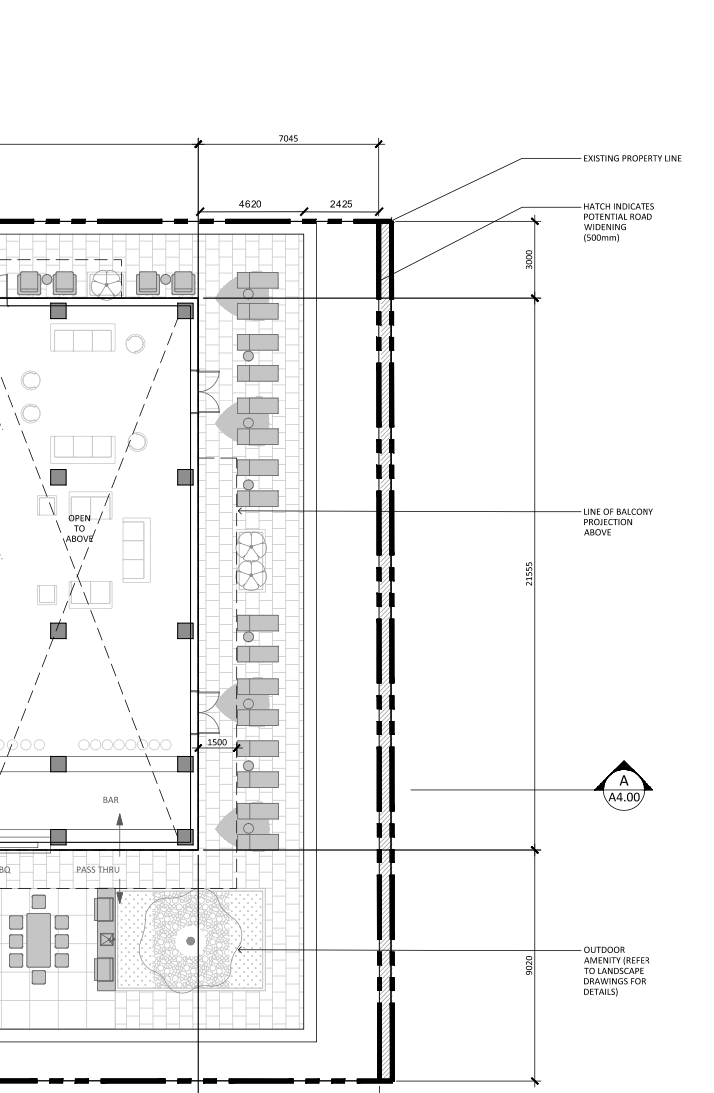
The setback to Danforth property line is 7.045m (inclusive of balconies) or 5.545m exclusive. The setback from the podium on Danforth is 4.6m (inclusive of balconies)

The setback to Pape property line is 9.020m (inclusive of balconies) or 7.520m exclusive. The setback from the podium 7.495m (inclusive of balconies)

Screen Shot 2022-09-08 at 3.40.15 PM.png


Screen Shot 2022-09-08 at 3.36.08 PM.png
 
The setback to Danforth property line is 7.045m (inclusive of balconies) or 5.545m exclusive. The setback from the podium on Danforth is 4.6m (inclusive of balconies)

The setback to Pape property line is 9.020m (inclusive of balconies) or 7.520m exclusive. The setback from the podium 7.495m (inclusive of balconies)

View attachment 425717

View attachment 425716

Thanks.
 
Lets leave the nice, heritage-listed Royal Bank on the north-west corner alone shall we.

View attachment 422558

The south-west corner, which includes the former Odeon Danforth (now Good Life Fitness) is very much in play.

Not sure if @ProjectEnd is sneaking anything else by me in the area, LOL

I do know of a site nearby on the south side of Danforth that's in play, but its outside the shown Block Context Plan.
Just curious what you've heard about the south side. That image of all the future development on the South-East corner of Paper/Danforth doesn't quite make sense as it would require the takeover of a lot of current houses.
 
Just curious what you've heard about the south side.

There's not much I can say, that I have not said, as yet.

That image of all the future development on the South-East corner of Paper/Danforth doesn't quite make sense as it would require the takeover of a lot of current houses.

The block context plan on the south generally shows development south to the laneway behind the current Danforth-facing buildings.

That lane doesn't come out to Pape, it would cut through or immediately to the south of the Pape Library Branch.

At most, that would involve one SFH (duplex), to the south of the Library.

None of the buldings fronting Pape are on the heritage registry, either listed or designated.

Many people are fond of the current Library storefront, but should the City put this property on the market, it would be easy enough to require its retention.

TPL have been interesting in moving the Pape branch for sometime, as it's one of, if not the smallest of the District Library branches, it should be at least double, if not triple the current size.

For that reason, I can very much the City open to making a deal here.
 
There's not much I can say, that I have not said, as yet.



The block context plan on the south generally shows development south to the laneway behind the current Danforth-facing buildings.

That lane doesn't come out to Pape, it would cut through or immediately to the south of the Pape Library Branch.

At most, that would involve one SFH (duplex), to the south of the Library.

None of the buldings fronting Pape are on the heritage registry, either listed or designated.

Many people are fond of the current Library storefront, but should the City put this property on the market, it would be easy enough to require its retention.

TPL have been interesting in moving the Pape branch for sometime, as it's one of, if not the smallest of the District Library branches, it should be at least double, if not triple the current size.

For that reason, I can very much the City open to making a deal here.
Interesting comments about the new laneway. It strikes me that if the laneway to Pape St won't go through the current library, they'll have to use land currently occupied by the SFHs on Pape/Hazelwood. But I assume that's part of the development costs.

I'd be sad to see the library go in the neighbourhood, but hopefully the city relocated it somewhere close.
 
...adding this one to our watch list - it feels like "sweet relief" after City Planning staff have spent most of the last decade consulting and writing reports on insane principles like = "City staff determined that buildings higher than 8-storey are inappropriate along the street." (Feb. 2022)

 
...adding this one to our watch list - it feels like "sweet relief" after City Planning staff have spent most of the last decade consulting and writing reports on insane principles like = "City staff determined that buildings higher than 8-storey are inappropriate along the street." (Feb. 2022)


I did note that we would see additional height around the MTSAs on Danforth, when the previous report came out.

This is not the last proposal we will see reflecting that.

Though, I think you will see the height come down a bit from this ask, in terms of what actually gets approved. Such is the way the game is played in Toronto.
 
Apart from zoning, I'd like to see relaxed policies around floorplates and angular planes.

Density is one thing, but as we all know, most units in modern buildings are not very livable from a size and layout perspective.

More flexibility in how these towers are built, including larger floorplates, would help with layouts and must definitely be on the menu.
 
Apart from zoning, I'd like to see relaxed policies around floorplates and angular planes.

Density is one thing, but as we all know, most units in modern buildings are not very livable from a size and layout perspective.

More flexibility in how these towers are built, including larger floorplates, would help with layouts and must definitely be on the menu.

I agree, in theory; the problem we always encounter is precedent. Once an idea is permitted somewhere, for very good reasons, someone else will claim that right elsewhere w/o those same good reasons.

Example. Floor plate limitations, are in part, a function of shadowing and skyview considerations. I view both of these as quite important. But they vary in importance based on other building elements.

If you increase separation distance between tall buildings, from say 25M to 50M the floor plate is potentially less of an issue. It's also less of an issue at lower heights, which is already reflected in midrise guidelines, but not that well, and less well in tall building guidelines. Meaning, the taller a building gets the more advantage there is the smaller floorplate and the greater separation distance; meaning if you play with tiering and setbacks, one might argue for allowing larger floor plates at lower elevations in exchange for small floor plates (or greater separation) at higher elevations.

****

Likewise, the angular plane makes sense in different ways in terms of insuring good levels of main street sunlight, and reasonable setbacks that limit privacy/overlook and transition to lower rise areas.

But one can find other ways to achieve these effects. For instance, a building with a courtyard design, where any balconies face inwards, significantly reduces overlook issues, Transitioning when overlook is not a factor can be less progressive (larger, less tiered drop offs).

Sunlight access (or the impact of shadows) also varies for a host of reasons other than a new building's height. It has to do w/the direction of roads and laneways (more sun comes from the south, so a N-S roadway or laneway provides greater light access to properties fronting such streets than to E-W streets.

There are a host of variables. The challenge in allowing for handling them is the degree to which tradeoffs are subjective; and the lack of creativity that infests too much of the development industry here, every bit as much as planning.

It turns out, at least as far as I'm concerned, it's all about the outcome, not the process.

But describing the outcome in guidelines or Official Plans or Zoning By-Laws is surprisingly challenging; where dictating the process is perhaps too easy.
 
Last edited:
Did someone say something about intensification on Danforth? Well..............


View attachment 422250


This is the site of a current medical office building; but was formerly the Palace Movie theatre.

Site as it is today (Aerial view from the Planning Report)

View attachment 422260

Architect is Studio JCI.

View attachment 422251

View attachment 422252

View attachment 422253

From the Planning Report:

View attachment 422261

* note the proposed connection to the subway/OL station.

View attachment 422254
View attachment 422255
View attachment 422256
View attachment 422257
View attachment 422258
View attachment 422259

Comments: Resident Park/commercial parking is not justified here.

More comments to come.

At this point I wouldn't be surprised if firms have an AI that generates these cookie-cutter designs that could be anywhere.

I understand the need for intensification, but this is a bit much. There are some established landmarks and a character to the area - why can't that guide design and development along this corridor?
 

Back
Top