The Eaton Center was never great architecture. It was and is a mall.

The interior was great. And there is no reason why a mall can't be architecturally interesting, or even stunning (Yorkdale in 1964).

The Eaton Centre exteriors had their issues, and didn't ultimately work, but were more ambitious and better at the time of their construction (if not necessarily at the time of their demolition) than what replaced them.

As @ProjectEnd says, the silver lining is that one day the facades that exist today are so cheaply constructed that they could be demolished and replaced with something better. It's an argument I have made recently in these forums with respect to 10 Dundas, but it's cold comfort.
 
10 Dundas is fugly on the outside but the way all the escalators crisscross and span that open space from the upper floor down to the below grade level is really cool.
 
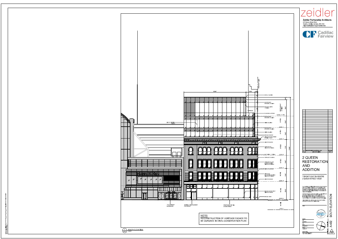
The architectural plans are up at the Dev App site - still a Zeidler, and the design is ultra-safe, ultra-inoffensive.

http://app.toronto.ca/DevelopmentAp...ion=init&folderRsn=3946404&isCofASearch=false

View attachment 75577
(p. 1)

View attachment 75578
(p. 16 - East elevation)

View attachment 75579
(p. 17 - South elevation)

AoD

The intersection of Yonge and Queen will look great, with 3 historical facades: Saks/Hudson's Bay, Manulife and now 2 Queen West. :)
 
IMG_5002.JPG
IMG_5005.JPG
IMG_5019.JPG
IMG_5023.JPG
IMG_5028.JPG
IMG_5031.JPG
 

Attachments

  • IMG_5002.JPG
    IMG_5002.JPG
    2.6 MB · Views: 2,365
  • IMG_5005.JPG
    IMG_5005.JPG
    1.8 MB · Views: 2,290
  • IMG_5019.JPG
    IMG_5019.JPG
    2.1 MB · Views: 2,241
  • IMG_5023.JPG
    IMG_5023.JPG
    1.9 MB · Views: 2,252
  • IMG_5028.JPG
    IMG_5028.JPG
    2.8 MB · Views: 2,337
  • IMG_5031.JPG
    IMG_5031.JPG
    2 MB · Views: 2,267
It's s strange no-man's-land back behind the facades!

42
 
I didn't realize they were so far from the actual structure. That is weird. I feel like they could have used that space for expansion or terraces or... anything other than garbage nooks.
 
Are they renovating this area of the building as well?

change2.JPG
change1.png
 

Attachments

  • change2.JPG
    change2.JPG
    2.8 MB · Views: 1,912
  • change1.png
    change1.png
    863 KB · Views: 1,826
Last edited by a moderator:
No.

42
 
I think that part is owned by Cadillac Fairview and is the Eaton Centre parking structure.

A small fantasy, but I'd really like to see the facade of the old Eaton's department store rebuilt on that stretch.
 
Would it be possible to carry on the theme on this corner all the way to Nordstrom? Brick and/or glass 4-6 floors of retail and office above. Those Eaton Centre stores that back on to Yonge could be chopped in half/re-configured so that the Yonge Street entrances become actual entrances rather than locked entrances never used.

I suppose some sort of ventilation system would need to be designed for the parking garage behind it.
 
If you look at my pictures in post #380, you can see that this would be impossible due to the location of the parking garage. Above the first two floors, those 'facades' are really just silly, Potemkin set pieces. They're propped up from behind to screen the garage behind them.
 

Attachments

  • IMG_8653.jpg
    IMG_8653.jpg
    481.6 KB · Views: 832

Back
Top