@Sinonian - as with all OMB/OLT decision,.. it's only for zoning changes, ie: mainly massing of height, density - built form. After this Decision,.... the Developer still need to submit detailed blue prints for Building Permits to start construction - usually adding another 2 years.
 
With Council mostly adjourned through last year's election.........only now is the Report requesting direction to oppose this at OLT coming to NYCC:


This report reads as a total thrashing.

I'm not sure I buy the height/density argument unto itself; but some of the criticism here of how curb cuts and driveways and setbacks are handled is entirely fair.

From the report:

1673638591766.png

1673638629549.png


***

1673638684554.png

Transportation

1673638762708.png
 
This one was the subject of a confidential settlement offer at the July Council meeting.

That offer was subsequently adopted and the contents is now public.


Of note, this one increased in height in the sausage making process. (though a 'reduction' is stated below, the heights are above what this thread indicates)

1691164674511.png

1691164755500.png

1691164785791.png


***

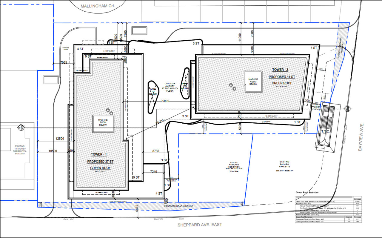
Site Plan:

1691164841585.png


Upper Ground Floor Plan:

1691164892346.png



1691164934111.png


Comments: Haven't gone through this one closely yet, I see the City got its road widening on Sheppard; but over the TTC's objection, there is only a 3M setback from the current access; that will be moot if said access is integrated into this proposal;
which the applicant has agreed to work towards, but which has not been settled. I don't see why that bit isn't iron clad at this stage given the setback issue.

I hate the park, of course.

LOL
 
This one was the subject of a confidential settlement offer at the July Council meeting.

That offer was subsequently adopted and the contents is now public.


Of note, this one increased in height in the sausage making process. (though a 'reduction' is stated below, the heights are above what this thread indicates)

View attachment 497649
View attachment 497650
View attachment 497651

***

Site Plan:

View attachment 497652

Upper Ground Floor Plan:

View attachment 497653


View attachment 497654

Comments: Haven't gone through this one closely yet, I see the City got its road widening on Sheppard; but over the TTC's objection, there is only a 3M setback from the current access; that will be moot if said access is integrated into this proposal;
which the applicant has agreed to work towards, but which has not been settled. I don't see why that bit isn't iron clad at this stage given the setback issue.

I hate the park, of course.

LOL
Although I really like the idea of having small open/green spaces at TTC station accesses, nobody is sitting at the corner of Sheppard and Bayview to relax and enjoy anything.
 
Although I really like the idea of having small open/green spaces at TTC station accesses, nobody is sitting at the corner of Sheppard and Bayview to relax and enjoy anything.

Exactly. It's not just the park would be quite small, it's that its location is about as appealing as the smell of rotten eggs.

People in that area deserve a park too; but not one next to umpteen lanes of traffic.

Look at this area map:

1691167794245.png


Bayview Village Park would benefit from enlargement. Though a stream is shown on this map, it's buried, widening the park could allow for daylighting the stream and retaining all park amenities.

Sheppard East Park is quite narrow and not very functional from a layout point-of-view; meanwhile Glendora Park is sitting on top of Wilket Creek, and is also a less than ideal size/configuration.
 
But Bayview Village Park is on the other side of Bayview Ave,... and thus in another Ward. Rules for Section 37 Community Benefit and Section 42 Parkland Dedication is they can be on-site, off-site or cash-in-lieu,.. but can only be spent within the Ward where the Redevelopment happens.
NOTE: There are cases like for 4050 Yonge (northwest corner of Yonge and YorkMills/Wilson), where this site is also on Boundary where this west side belongs to one Ward but most local residents on East-side (Hoggs Hollow) successfully argued their area should be included in Section 37 Community Benefit,... their Councillor Jaye Robinson got involved and both Councillor agreed to share,... but Cllr Karen Stintz also managed to get some of the Section 37 Community Benefit diverted 3km away into her Bedford Park neighbourhood.
With Gupta changing that Development Proposal to something entirely different,... I'm hopping the Section 37 Community Benefit and Section 42 Parkland Dedications also changed,.... I know more has been dedicated to Multi-Use Trail.

Conveyance of frontage strip of land for Sheppard road widening is interesting,.. it's done on most major arterial roads - here, on Sheppard the Official Plan from Metro Toronto is to winden from 4 to 6-lanes,... but this stretch of Sheppard between Bayview to Bonnington Place / Doris Ave is subject to resurfacing starting next month with the addition of bike lanes instead of new traffic lanes,.. in fact many turn lanes will be eliminated,...
- here in front of 500 Sheppard Ave East, 3 westbound lanes were to be reduced to 2 westbound lanes,... but City seems to be delaying this part! Why? I suspect due to objection from MTO! While Bayview Ave and Sheppard Ave are City of Toronto municipal roads,.. the MTO has higher level of jurisdictional right over parts within 500m of 400-series interchange,... here that's Bayview-401 interchange,... so that applies to Bayview Ave since it's the intersecting arterial,... but does it applies to Sheppard,... here there's a double left turn lane from northbound Bayview to westbound Sheppard. Thus, to keep this section at 3 westbound lanes,... with addition of bike lane,... we'll need road widening here from land conveyance from this development

356257963_1019307989240247_6539992053923307623_n.jpg
 
Also note, the proposed day-care facility would be private and small,... not a non-profit day-care via Section 37 Community Benefit,... it may not materialize at all
 
But Bayview Village Park is on the other side of Bayview Ave,... and thus in another Ward. Rules for Section 37 Community Benefit and Section 42 Parkland Dedication is they can be on-site, off-site or cash-in-lieu,.. but can only be spent within the Ward where the Redevelopment happens.

Hmmm,

I just re-read S.42 at the provincial level; then I consulted the City's Park's Acquisition policies.

Neither reference parkland dedication as having to be within the Ward of a development.

The word used is 'proximity'.

S. 37 is a different matter.

IF you have a reference on Parks policy that says the money must stay in the Ward, I would be interested in seeing that.
 
Interesting,....

Section 37 Community Benefit must be spent within Ward where Development happens,... and since it *was* a negotiated process between Developer and the Ward Councillor (now fixed at 4%), Section 42 Parkland Dedication would also be negotiated between Developer and that same Ward Councillor,....

Personally, I'd rather see a restriction on both Section 37 Community Benefit and Section 42 Parkland Dedication such that they must be On-Site, Or if Off-Site or Cash-In-Lieu then they must be spent within 500m or 1km of development site (regardless of Ward boundaries),... so that they'll off-set the negative consequences for the local community most adversely impacted by the Development and also benefit the new Residents who are ultimately paying for them.
 
Interesting,....

Section 37 Community Benefit must be spent within Ward where Development happens,... and since it *was* a negotiated process between Developer and the Ward Councillor (now fixed at 4%), Section 42 Parkland Dedication would also be negotiated between Developer and that same Ward Councillor,....

Personally, I'd rather see a restriction on both Section 37 Community Benefit and Section 42 Parkland Dedication such that they must be On-Site, Or if Off-Site or Cash-In-Lieu then they must be spent within 500m or 1km of development site (regardless of Ward boundaries),... so that they'll off-set the negative consequences for the local community most adversely impacted by the Development and also benefit the new Residents who are ultimately paying for them.

I think the distance requirement, as I suggested above as well, is the correct one.

Residents on one side of a Ward Boundary will get to use a park, library or childcare centre across the street. Even if that street is a ward boundary.

There is no logical reason to tie a benefit to a ward boundary, unto itself.

Voters will be just as grateful to or pleased with a politician who achieves a benefit they enjoy that happens to be on the other side of an 'imaginary' line.
 
Last edited:
The database information is now updated. The total storey count changed from 39 and 35 storey to 41 & 37 storey. The height changed from 134.75m & 122.65m to 142.40m & 130.10m. The unit count changed from 1028 units to 1072 units. The total car parking space changed from 333 car parking to 216 car parking.
 

The company is proposing 37- and 41-storey towers on a shared podium at 500 Sheppard Ave. E., at the northwest corner of Bayview Avenue, with retail and commercial space at grade. While it will be the next project to launch, Renwick couldn’t provide a timeline.

Sevoy is also considering one of the two towers offering purpose-built rental units instead of condo suites due to current market conditions, though no decision has yet been made.

“There was obviously a time when you couldn't get out soon enough and it was order-taking,” Renwick said of how condo sales have slumped from a few years ago. “And now, for the few sales that are happening, it's a lot of hard work.”
 
Setting up sales office at 5051 Yonge site,…former site for Michael’s - temporary Designer Row shop relocating upstairs, next to former Jack Astor’s, near former long time tenant Dairy Queen, apparently only thing that survive here are Konjiki ramen shop,… across from Mel Lastman Square - oh, City of Toronto still in business???,….
FBCFC86C-64F5-4605-97EF-2D137DF3B4C5.jpeg
 
  • Like
Reactions: PMT

Back
Top