HOW👏 DO👏 YOU 👏KNOW?

The blueprints explicitly state that the anchor tenant has their own design team. Whatever Apple has plans for, are not a part of the building construction and therefore not included in these blueprints or permits which will be submitted and obtained separately as have been with their previous stores.

img_3960-jpeg.312180


Nor you, nor I have access to Apple's plans. We can only go by Apple's own design precedents and hints from what was left by Mizrahi's team for Apple's. There are data risers going to the "third floor". For what? They're going to hang a display up there, 2 stories above people's heads? Precedent shows that their displays are mounted at floor level for Today At Apple presentations. If there is no floor up there what do you propose the data risers are for?

Unless you're prepared to share what source is giving you such certainty, then expect speculation to continue based on what is known and what we can see in existing blueprints and the built form.
These stairs/elevator go down to the concourse level below.

concourse.JPG
 
A link would've been helpful. This Application # is not coming up.

There was no link provided in the means by which I accessed the info............

That said, the application number works fine for me.......

Did you access the Building Permit Status Page?

That's here:


Aside from using the application number.............you can search by address, or just click on a spot on the map and it will show you all permits within a set radius.
 
Apple is also taking the second floor of the adjacent heritage building which further adds to speculation that they'll have a platform or otherwise second floor space open to the main retail floor.
Based on most Apple flagships (and I can speak with some authority having worked there for many years), there is usually a business "boardroom" which I could see being put in the heritage structure.

In terms of interiors, let's make it pretty clear - no one knows what's going in there as everything is listed as "placeholder". So those saying there may be a second floor are as right as those saying there isn't. Only time will tell, but let's be civil about ya?
 
Apple is also taking the second floor of the adjacent heritage building which further adds to speculation that they'll have a platform or otherwise second floor space open to the main retail floor.
Small point, but could we stop calling the possible intermediate space, a platform. How about using a time-honoured term like 'mezzanine' (A mezzanine floor is an intermediate floor which is built between two main floors or the floor and ceiling of a building. ...)
 
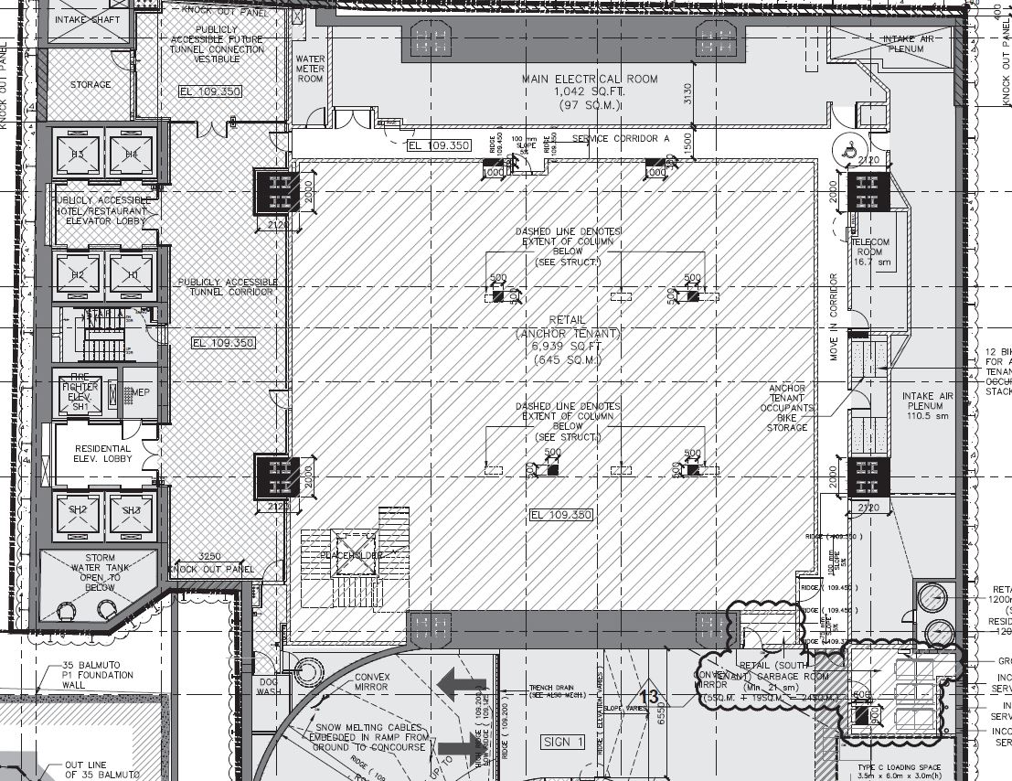
Placeholder to do go down from the first level to the concourse.

We know that there will be stairs and an elevator going from the first level to the concourse. What I’m pointing out in sharing that image is that the blueprints explicitly state that Apple has their own design team and that the design of such details are provisional and their final form will be present in a separate application which is not included here.
 
Enough. No more.

42
 

Back
Top