I’m not surprised. Real estate, when it becomes a significant contributor of gdp, as it has in BC and Ontario, always attracts the kind of low lifes and con men that are outlined in the Star article. A shell game that moves debt and deeds around without contributing anything to society but inflated prices. There is an elderly woman in my neighbourhood who collects bottles and cans that people leave out so she can collect the meger deposit they yield. In my opinion she contributes more to society and has more honour than many of the low life real estate speculators that have infested our city.
 
From Bay & Bloor

DSCF6519.jpg


 
My goodness, that is quite the penthouse.

Ownership:
1583432943257.png


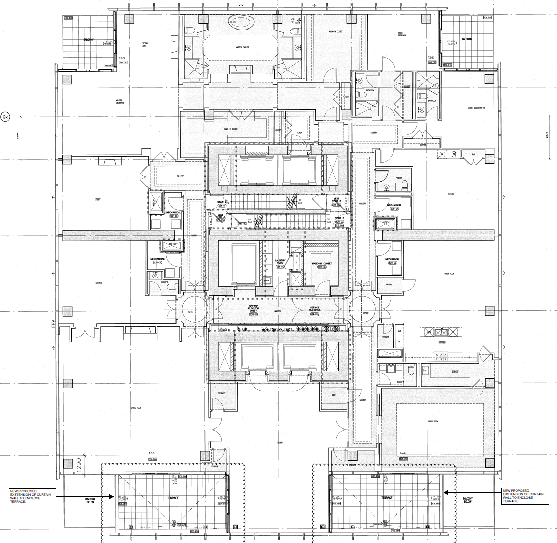
Layout:
1583432992371.png


I wonder if this is owned by Peter Gilgan? In the correspondence, the architect is getting answers about ownership from Jim McGill from the Gilgan Family Office, and Greg Wallace from Mattamy.

Smart to enclose the terraces. It is really stupid to have balconies this high in the sky. I just can't imagine them being usable with the wind levels.
 

Attachments

  • 1583433042712.png
    1583433042712.png
    315.6 KB · Views: 515
My goodness, that is quite the penthouse.

Ownership:
View attachment 234631

Layout:
View attachment 234632

I wonder if this is owned by Peter Gilgan? In the correspondence, the architect is getting answers about ownership from Jim McGill from the Gilgan Family Office, and Greg Wallace from Mattamy.

Smart to enclose the terraces. It is really stupid to have balconies this high in the sky. I just can't imagine them being usable with the wind levels.

It is owned by him. There's article related to the sale; he paid $31,000,000 back in 2018!

 

aA really got the profile right with this building. The tapering 3-tier skyscraper profile was a staple of the Art Deco era. It elegantly emphasizes a tower's height. Here's aA created a minimalist Modern interpretation. The podium is the first and widest tier. Then, the hotel tower rises in the slightly narrower second tier. Finally, the ever thinner condo tower soars above the middle tier as the third tier.

It concludes with a light and glassy penthouse level that appears thinner because of the lack of corner balconies. I wish we'd see more such massing.
 
Something is going on near the top of the Four Seasons Hotel in Yorkville. I’m wondering if anyone knows what is going on?
445D5402-A9DE-42E7-8CD2-3C73772681DC.jpeg
 
Last edited by a moderator:

Back
Top