• Thread starter Suicidal Gingerbread Man
  • Start date
Interested to see if the grass on the shed roof is still in the plan.
IMG_8807.jpeg

My guess is probably not as part of the CIBC Square delivery, considering the amount of platform reconfiguration planned at Union.
 
Interested to see if the grass on the shed roof is still in the plan.
View attachment 513468
My guess is probably not as part of the CIBC Square delivery, considering the amount of platform reconfiguration planned at Union.
Since visiting Salesforce Park in SF I’ve always thought it was a missed opportunity with all the union station renovations to not consider a “rooftop concourse”. It could have made for so much extra free space and fresh air for people waiting for trains in the summer time.
 
New core size and signage.
A new crane arm to level 19 and a height increase coming soon.
Looking forward to the Yonge St bridge. I thought is was Q4.
_N8A1877.jpeg


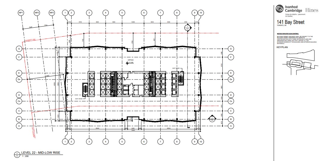
I guess the elevator riser plan changed (east to west) compared to the submitted SPA documents or I have the drawings upside down..
Level%2022%20141%20Bay.jpeg
Level%2024%20141%20Bay.jpeg

Oct 11
_N8A1820.jpeg


Oct 18
_N8A1865.jpeg


I forgot how far the podium will be over the tracks too.
_N8A1869.jpeg


Site plan
IMG_4599.jpeg


_N8A1878.jpeg


_N8A1856.jpeg


_N8A1847.jpeg
 
Interested to see if the grass on the shed roof is still in the plan.
My guess is probably not as part of the CIBC Square delivery, considering the amount of platform reconfiguration planned at Union.

I have always been curious about this too. Here is what I found:

This renovation came with plans to have a green roof installed, reducing the urban heat island effect and stormwater runoff; however, with the project being almost eight years behind and multiple times over budget, along with the fact that plant-watering logistics would clash with the planned overhead wiring for electrification, the addition of a green roof was cancelled.
 
Last edited:
New core size and signage.
A new crane arm to level 19 and a height increase coming soon.
Looking forward to the Yonge St bridge. I thought is was Q4.
View attachment 514152

I guess the elevator riser plan changed (east to west) compared to the submitted SPA documents or I have the drawings upside down..
View attachment 514158View attachment 514159
Oct 11
View attachment 514160

Oct 18
View attachment 514155

I forgot how far the podium will be over the tracks too.
View attachment 514154

Site plan
View attachment 514153

View attachment 514151

View attachment 514156

View attachment 514157

Or maybe they have the plans backwards and it's a big error lol
 
Bay St will be closed (front to lakeshore) from Friday Nov 3 @ 7pm - Monday Nov 6 @ 5 am.

From an April 2023 CIBC Square construction update below, could they be installing/prepping for the new bridge or just reworking the tower crane or starting the Queens Quay E LRT tunnel rework early?

I think this was a two weekend closure for the south bridge a few years back.
IMG_7512.jpeg


  • The Union Station Bridge is also under construction. Pedestrian traffic diversions will continue to be in-place to/from the west Teamway along Union Station during column foundation for the safety of pedestrians, and workers. Bridge structure installation is estimated to start in Q3/4 2023, with lane closures to occur simultaneous to bridge installation – we will share more as soon as these plans are finalized.
  • Demolition of Yonge Street Viaduct was completed in Q4 2022 to prepare for the Backstage bridge, and the start of the bridge structure installation is estimated for Q4 2023. Similar to the Union Station bridge, lane closures to occur throughout construction of bridge – we will share more as soon as these plans are finalized.
 

Back
Top