Looks like the park beside Aquabella (Aitken Place Park, between Aquabella and Aquavista) isn't progressing very fast. Thought it was supposed to be done in the next couple of months?

The bids for Aitken Place Park came back above budget and the park had to be redesigned for the envelope - from the May 31 Finance, Audit and Risk Management Committee Board Book, p. 18:

upload_2018-6-22_14-25-20.png


https://waterfrontoronto.ca/nbe/wcm/connect/waterfront/e2d77c63-b0cf-4b1b-8ca4-e31c19374bda/meeting+book+-+finance,+audit+&+risk+management+committee+meeting+-118072+wo+app+3-4+reduced.pdf?MOD=AJPERES&CONVERT_TO=url&CACHEID=e2d77c63-b0cf-4b1b-8ca4-e31c19374bda

AoD
 

Attachments

  • upload_2018-6-22_14-25-20.png
    upload_2018-6-22_14-25-20.png
    113.8 KB · Views: 1,722
Last edited:
The bids for Aitken Place Park came back above budget and the park had to be redesigned for the envelope.

AoD

Interesting. Do you know if that means (a) the whole park design is scrapped and (b) it won't be done this summer/fall? I was looking forward to seeing this "light show" art they were going to do!
 
Interesting. Do you know if that means (a) the whole park design is scrapped and (b) it won't be done this summer/fall? I was looking forward to seeing this "light show" art they were going to do!

See above edited post with the schedule information. Don't have info re: the scale of redesign and the elements affected.

AoD
 
I wonder how far above the budget they were… and if the budget issues are because of riding material and about costs, or just an unrealistic plan.

42
 
From a distance, July 20:

DSC08724.jpg


42
 

Attachments

  • DSC08724.jpg
    DSC08724.jpg
    384 KB · Views: 1,648
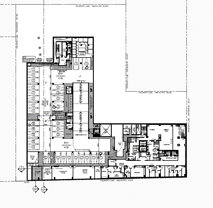
Does anyone know why there is an internal protrusion of the northwestern corner at aquabella site? "nothing like that in the project plan"

aquabella.jpg
 

Attachments

  • aquabella.jpg
    aquabella.jpg
    173.9 KB · Views: 1,905
Does anyone know why there is an internal protrusion of the northwestern corner at aquabella site? "nothing like that in the project plan"

View attachment 160320

It is like that in the project plan - that portion of the site is not excavated, but built atop - from the SPA Architectural Plans dated June 15, 2018:

B4:
upload_2018-10-14_23-38-35.png


B1:
upload_2018-10-14_23-38-54.png


L1:
upload_2018-10-14_23-39-14.png


AoD
 

Attachments

  • upload_2018-10-14_23-38-35.png
    upload_2018-10-14_23-38-35.png
    103 KB · Views: 1,778
  • upload_2018-10-14_23-38-54.png
    upload_2018-10-14_23-38-54.png
    116.3 KB · Views: 1,732
  • upload_2018-10-14_23-39-14.png
    upload_2018-10-14_23-39-14.png
    303.6 KB · Views: 1,766
It is like that in the project plan - that portion of the site is not excavated, but built atop - from the SPA Architectural Plans dated June 15, 2018:

B4:
View attachment 160392

B1:
View attachment 160393

L1:
View attachment 160394

AoD


very much appreciated,,

would you please share the link from where you got those updated plans so we have more access to the most updated Architectural Plans of Toronto projects.

p.s. is it safe for a 15 story building to have a portion of it built atop of the ground level not on the bedrock? 'this unexcavated corner will carry 15 story'

many thanks
 
Last edited:
very much appreciated,,

would you please share the link from where you got those updated plans so we have more access to the most updated Architectural Plans of Toronto projects.

p.s. is it safe for a 15 story building to have a portion of it built atop of the ground level not on the bedrock? 'this unexcavated corner will carry 15 story'

many thanks

There is no direct link available - this and other files are hosted at the City of Toronto Application Information Centre:

http://app.toronto.ca/DevelopmentAp...2991697&isCofASearch=false&isTlabSearch=false

AoD
 
p.s. is it safe for a 15 story building to have a portion of it built atop of the ground level not on the bedrock? 'this unexcavated corner will carry 15 story'

many thanks
Buildings are designed by professional engineers, who make sure that they will stay up, as lives are at stake if they fail. In the case, you will see that there are three columns that are being formed below that corner.

42
 
Downtown Toronto is probably a foundation engineer's dream. Shallow, compacted shale bedrock.

They aren't infallible when working within a budget as witnessed by the number of towers that had to be prematurely demolished in the US or, locally, The L Tower window washing crane.
 

Back
Top