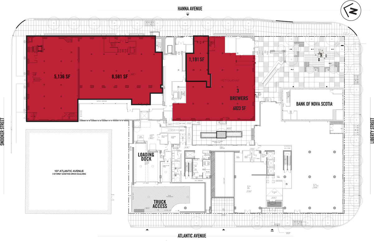
From today's community council item, a rendering of the POPS which will replace the originally proposed new 2-story building. Looks like the 3 Brewers that's going into 40 Hanna will have a patio spilling out on the public plaza.

The boiler house building will become a Scotiabank.

03.JPG

http://www.toronto.ca/legdocs/mmis/2016/te/bgrd/backgroundfile-92194.pdf

02.JPG

http://www.toronto.ca/legdocs/mmis/2016/te/bgrd/backgroundfile-92196.pdf

01.JPG

http://www.toronto.ca/legdocs/mmis/2016/te/bgrd/backgroundfile-92196.pdf
 

Attachments

  • 03.JPG
    03.JPG
    176.5 KB · Views: 4,025
  • 02.JPG
    02.JPG
    65.9 KB · Views: 1,615
  • 01.JPG
    01.JPG
    33.9 KB · Views: 1,610
They've been working away on the inside of the boiler house for a few months excavating the interior. Now they've moved onto carving out the space for windows and doors.

3 Brewers have also put up a sign that they are hiring.

IMG_20161004_174635.jpg


IMG_20161004_174639.jpg


IMG_20161004_174654.jpg
 
I think they've been fully replacing the roof this week.

Saw these guys on the ground, which you can also see in ProjectEnd's photo on the right.

upload_2016-11-11_23-2-22.png


There were also a bunch of open web steel joists in the parking lot in the middle of the week.

3 Brewers have also put up an entry and blade signage.
 

Attachments

  • upload_2016-11-11_23-2-22.png
    upload_2016-11-11_23-2-22.png
    776.9 KB · Views: 1,044
3 Brewers officially opened w/ full service today. There's a small area of new paving, but it'll probably be all redone once the boiler house is finished. I'd guess that it'll all be ready for next summer.

The roof in the boiler house looks to be up and they've finished carving out the new windows on the front facade.
 
Windows and canopies have been put up on the Scotiabank. 3 Brewers have enclosed their patio. They've also finished the first redesigned entrance. You can see the other ones being worked on in the meantime.

IMG_20170415_085002.jpg


IMG_20170415_085141.jpg


IMG_20170415_085030.jpg


IMG_20170415_085055.jpg
 

Attachments

  • upload_2017-10-7_16-12-48.png
    upload_2017-10-7_16-12-48.png
    1.9 MB · Views: 760
  • upload_2017-10-7_16-14-20.png
    upload_2017-10-7_16-14-20.png
    1.3 MB · Views: 722
Application:
Partial Permit
Status:
Not Started
Location:
40 HANNA AVE
TORONTO ON
Ward 19: Trinity-Spadina
Application#:
16 264881 FND 00 PP
Accepted Date:
Oct 5, 2017
Project:
Multiple Use/Non Residential
Work:
Partial Permit - Foundation
Description:
Part Permit - Proposal to construct a 8 storey office & retail addition with 4 levels of below grade parking - 99 ATLANTIC AVE - (building to connected to existing 5 storey mixed use non residential building at 40 Hanna Ave).
 

Back
Top