East Street high rise deal approved by OLT


A deal between the town and a Bronte developer that will see a 10-storey mixed use building rise at the corner of Lakeshore Road and East Street has received approval from the Ontario Land Tribunal (OLT).

The settlement will also require the developer to pay $790,000 to the town to be spent on local improvements, such as parkland, streetscapes or public art, within the Bronte area.

Podium Developments had originally applied to build a 15-storey tower and appealed to the OLT when the town failed to meet the deadline for a decision on the application.

Negotiations resulted in a settlement that was authorized by town council on May 2, after members of the public weighed in on several development options.

https://oakvillenews.org/news/town-and-developer-take-settlement-negotiation-public/

"This settlement moves us closer to the town’s vision for Bronte area as a vibrant and thriving neighbourhood," said Ward 1 councillor Beth Robertson.

"Residents have been waiting for some time to see the decision from the OLT. This is great news for our community and want to thank the many active voices from the neighbourhood that helped inform our approach."

The payment from the developer will be adjusted for inflation and submitted to the town once an above-grade building permit is issued. Town council will decide how to use the funding within the Bronte area, as part of a future budget process.

More information is available in the town’s staff report – item #7.3 in the May 2 Planning and Development Council agenda.

podi.JPG
 
What a wild design process on this one ... it ended up completely different from the 1st and 2nd iterations.
 
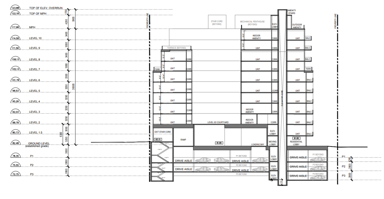
Not sure where or when it happened, or if it's just been cleverly hidden this whole time, but this is arguably a 12s building (now?). MP level is the 12th but has usable space, as pictured below. Never seen "Level 1.5" used in this scenario before either

Screenshot 2023-03-23 201055.png

Screenshot 2023-03-23 201031.png


These elevations are both dated March 2023
 
Not sure where or when it happened, or if it's just been cleverly hidden this whole time, but this is arguably a 12s building (now?). MP level is the 12th but has usable space, as pictured below. Never seen "Level 1.5" used in this scenario before either

View attachment 463687
View attachment 463688

These elevations are both dated March 2023
They're allowed to declare a floor as a mezzanine when it has left than half of the footprint of the overall project. It only really matters where the municipality is concerned with whatever the declared floor count is, as if that would physically change the building where it was counted as a second floor or not, and allows the developers to tell nearby residents "it's only 10 storeys, not 11, don't worry!!!!!" It's all silliness.

42
 
This project is also now officially called "Lake & East" by the developer

Which is what is was called the first time around by the previous developer I believe.
 
There appears to be extensive drilling operations on going on this site. A pair of rigs plus other equipment. Not rigs for foundation work. Lighter use rigs. perhaps exploration or dewatering? If I have a chance to take some photos, I will upload.
 

Back
Top