You like it up close? We got it up close for ya!

510YongeAerS1280.jpg
510YongeHeroNW1280.jpg
510YongeStrSW1280.jpg


Let's snuggle up a bit more!

510YongeStrSW1280K.jpg


42
 
You'd like maybe it should be even closer? Hope you like scrolling!

510YongeAerS1280K.jpg
510YongeHeroNW1280K.jpg


42
 
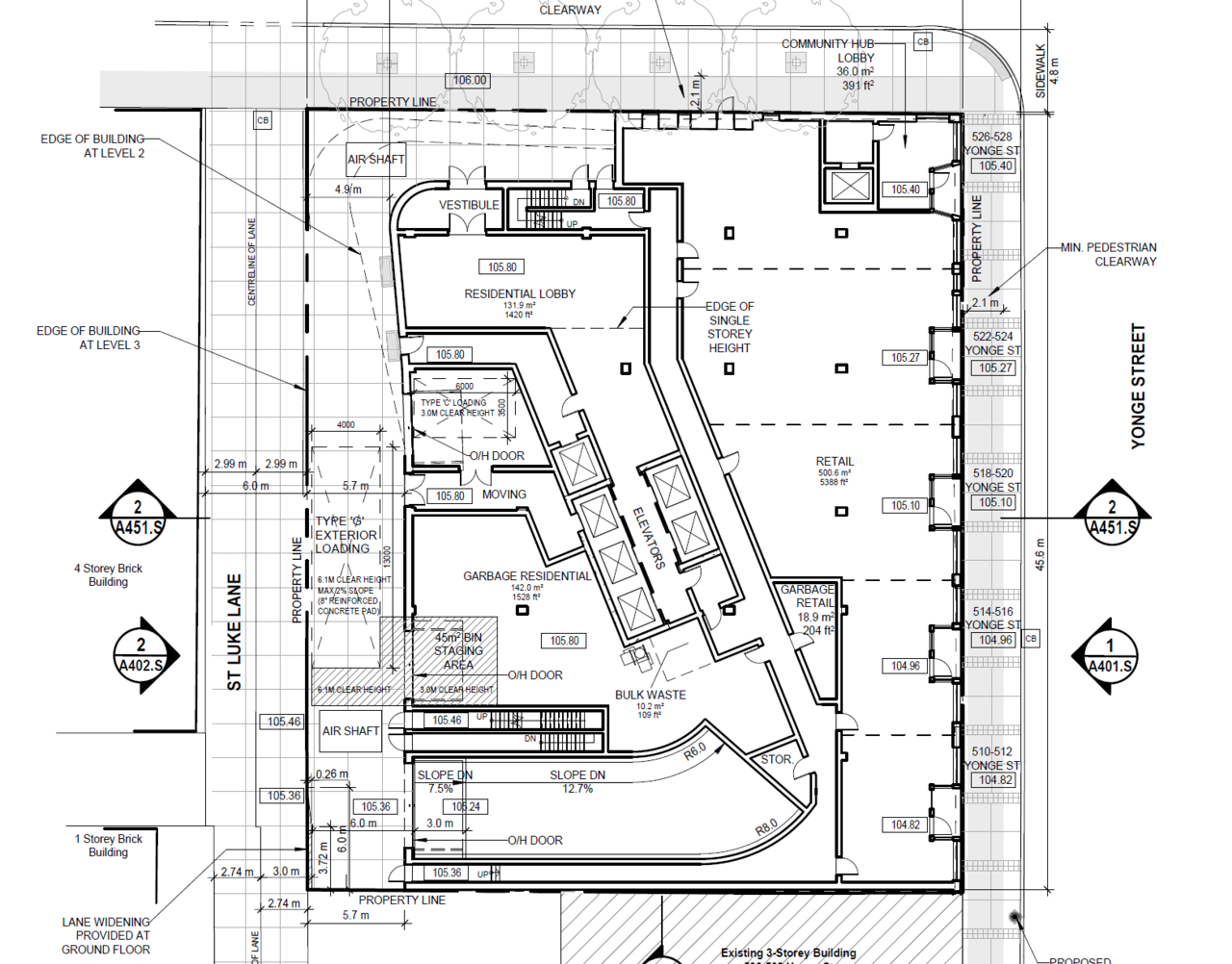
Bad for the tower, better for the retail facing Yonge though - comparison of the two floor plans:

Original proposal (October 2020)
View attachment 445407


Current Proposal (Nov 2021):
View attachment 445408

AoD

I feel like in either case, those retail spaces will get combined either way. So while the original plan had oddly shaped retail units, reality is once they're combined it wouldn't have made much of a difference on the Yonge frontage.
 
I've looked over everything.

My take here is 'No'.

Reasoning:

1) They want to exceed the floor plate guideline, and they proposed to do so while not clearly offering a public benefit in exchange.

2) By removing not one, but two setbacks they make the thing a giant, hulking box. I'm prepared to support simplification, and constructability, but that's more about removing needless setbacks before you get to a 750m2 floorplate, than allowing a floorplate in excess of 800m2 .

It's also about removing silly wedding cake nonsense or even worse the step ladder of dozen steps. But that's not what was approved here, and that's not what's being remedied. This reads more as greed from Kingsett than anything else.

3) I don't see an updated wind study. Removing all setbacks on the tower form almost certainly impacts wind, I want a study update.

4) A private student residence is ....... is unclear to me. Who exactly, and will the housing be affordable to students? This sounds to me like Campus One or some such provider, and I'm not keen on their work in the past, which ends up being relatively unaffordable and ....well.... bad. If TMU wants to pick this up as a residence, let them buy the site off Kingsett, commit to affordability, and we can talk.

****

This will probably go through, as I don't think I wish to waste my capital stopping it......
 
Last edited:

Back
Top