Also, I don't know how the hell this tapering policy is supposed to make any sense at all fifty years from now when density patterns will have completely changed. Seems pretty short-sighted.

Well, it appears that the City is busily putting together a new policy for the Entertainment District, due to all the towers being proposed for the area. It's possible (at least I hope so!) that they will ease the height restrictions caused by this skyline tapering nonsense, and perhaps even allow a change in the 300 Front West design back to the earlier proposal. I would assume that its plans can still be changed, up to the start of construction.

As you say, we cannot know what the city will look like in 50 years, but I could see this area becoming the western half of an enlarged CBD, with a mix of residential and office towers. (We already have the Metro Hall buildings, the CBC building and under construction the RBC tower, so large-scale office use has a precedent in the area.)
 
kitchen_wlogo_1000.jpg

suite_wlogo_1000.jpg

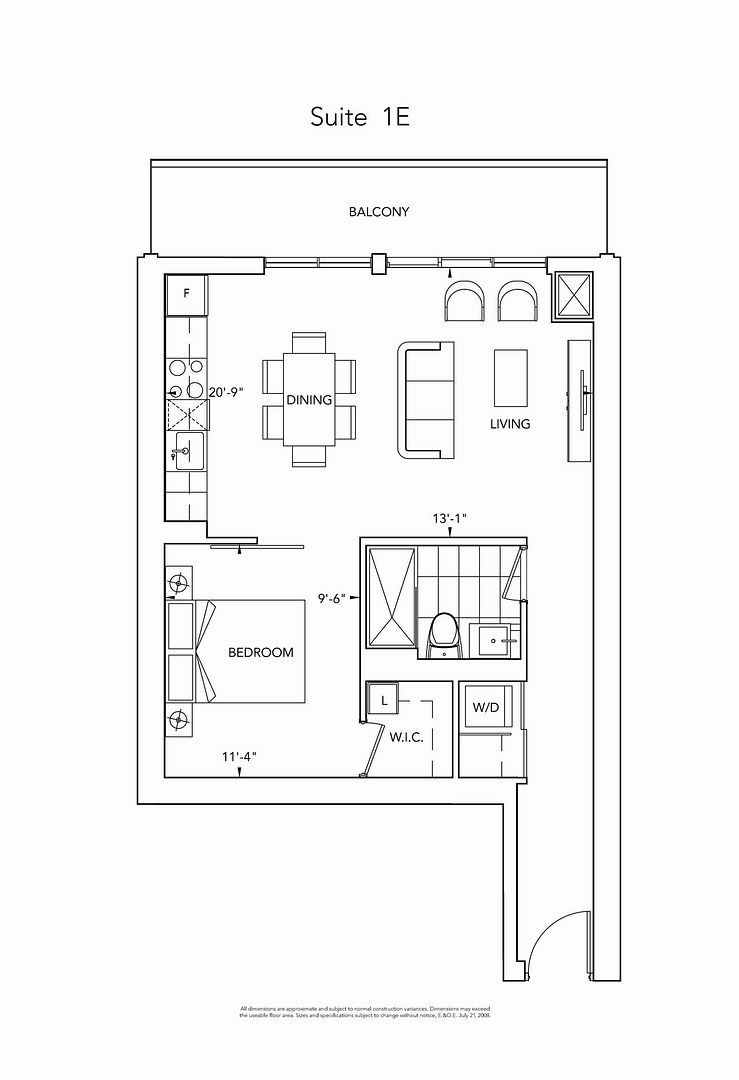
The suite design shown is a 1 bedroom 1E. The suite faces almost directly east. The suite width is just a little more than 20 feet and the balcony is the full length just outside the floor to ceiling low-E windows. Depending on the floor the suite is located the views should be quite impressive.



I agree that the interior renderings look great, however I figured from the floorplans in order to get a nice living/dining room with all the windows shown, you end up with many units having interior bedrooms with no windows
 
I agree that the interior renderings look great, however I figured from the floorplans in order to get a nice living/dining room with all the windows shown, you end up with many units having interior bedrooms with no windows


Typically, the concession is that the bedroom without a window is fitted with a frosted glass door.
 


I agree that the interior renderings look great, however I figured from the floorplans in order to get a nice living/dining room with all the windows shown, you end up with many units having interior bedrooms with no windows

The developer greed is startling! Is it possible to make these units any smaller? How do people live? You can't entertain, you can't have a family and with the cost of the units, you can’t afford to eat out every night. There has to be some sort of fall out of all of this. These units will undoubtedly become rentals and then everything goes downhill. And if your downtown is full of tiny expensive rentals......
 
Just spent the last couple of minutes staring at that very pretty 'flyby?'image of the building while looking south. Very pretty indeed, although unfortunatly it is hardly realistic.
I understand perspective and how it can sometimes decieve....but guys,....come on now!
Look at the size of the buildings along the waterfront which are a little less than a half kilometre away! This rendering is just plain silly. Reign in your egos there Tridel and get this thing back down to true size in relation to the surrounding buildings,

Really nice picture though.:rolleyes:
 
The best way to judge the scale of the rendering is to compare the 300 Front West "podium" with the CBC building just across the street. The roof height of the CBC building (presumably to the top of the smaller cubes on its roof) is 60m. The top of the "podium" appears to be about 47.5m tall, going by the diagram in the latest City report.

Looking at the render, the "podium" looks about 20% to 25% taller than the CBC building, from the sidewalk to the top of the red-sided roof cube. This would represent a true height of about 72m to 75m, giving a scale exaggeration of about 52% to 58% for 300 Front West -- so it should be about two-thirds the rendered height, at most.

edit -- a way to check these results: the CN Tower main deck starts at 346m in height. The top of 300 Front West, at 156m, should be about 45% of that height. Looking at the render, it appears to reach about three-quarters of the way up -- again, a slightly more than 50% exaggeration in its height.

Tridelwebmaster, this is not a slam at you. I greatly appreciate your work in providing information and imagery of the various Tridel highrise projects. But some of your "suppliers" are being a bit... overenthusiastic.
 
The developer greed is startling! Is it possible to make these units any smaller? How do people live? You can't entertain, you can't have a family and with the cost of the units, you can’t afford to eat out every night. There has to be some sort of fall out of all of this. These units will undoubtedly become rentals and then everything goes downhill. And if your downtown is full of tiny expensive rentals......

I don't imagine families are planning on buying the one bedroom suites. You can easily entertain several guests in this suite, and presumably if you can afford this condo then you can afford the lifestyle.
 
I don't imagine families are planning on buying the one bedroom suites. You can easily entertain several guests in this suite, and presumably if you can afford this condo then you can afford the lifestyle.

You presume much - most buyers of these units are either speculators or first time buyers. first time buyers do not have the disposable income you deem to presume and speculators are likely going to rent them out until there is a need for cash or the units rise in price sufficiently to create a decent return (minus capital gains of course) Unfortunately, with all the projects that are currently on the market, price increases are unlikely for quite some time. The likelihood is that there will be a great many of these dinky little units rented out and when you have a high percentage of rentals, the buildings begin to decay – then you have more units become rentals and so on.

With respect to entertaining, the "kitchen/dining/living†room of this unit is 13 by 18. A two car garage is 20 by 19 and the average “living/dining†room in a standard home is approx 12 by 20. I think this unit is absolutely claustrophobic. I guess the nice thing is you can change the channel on the tv and flip the pancakes all while sitting at your “dining room†table.

And with respect to families - none of these projects are being built with families in mind (I haven’t heard mention of school construction going on). They’re are all being built with "couples" in mind and once these "couples" start to have families, it’s out to the burbs they go.
 
With respect to entertaining, the "kitchen/dining/living†room of this unit is 13 by 18. A two car garage is 20 by 19 and the average “living/dining†room in a standard home is approx 12 by 20.

Makes sense, cars are a lot bigger than people.
 
Makes sense, cars are a lot bigger than people.


Very astute, and here I thought you might not understand what I said, you know, with all them big words and all. But nope, you nailed it. Nothing like a little stimulating conversation.
 
If you live at Front & John and want entertainment space, step outside and voila! Or, dort gehen Sie, to continue the German subplot.
 
Very astute, and here I thought you might not understand what I said, you know, with all them big words and all. But nope, you nailed it. Nothing like a little stimulating conversation.

Just out of curiousity, what are your opinions on urban sprawl and people who drive SUVs?
 

Back
Top