Red Mars
Senior Member
Mar 2, 2022
Part of the PATH Network?
Part of the PATH Network?
Mar 2, 2022
Part of the PATH Network?
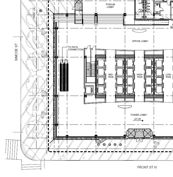
Yes - Simcoe Place is connecting to this tower - http://app.toronto.ca/tmmis/viewAgendaItemHistory.do?item=2021.MM35.2
View attachment 382915View attachment 382916
As it stands, this link is a good step but probably not that useful until the path is extended south east to connect to Citigroup or RY and then Union.
I don’t think it is in the current plan. It don’t think they would tunnel under 152 Front but they could tunnel under Simcoe and connect to Simcoe place. Or perhaps they can just connect Simcoe place to whatever replaces the convention centre and close the loop that way.Will that come with the Westbank project to the south?
Toronto has sure changed... it used to be the concrete club but now it's more the blue glass district, could use another building like Scotia Plaza.View attachment 383694Login • Instagram
Welcome back to Instagram. Sign in to check out what your friends, family & interests have been capturing & sharing around the world.www.instagram.com
Yes, the angled glass looks good but unless they have it washed frequently it will not look so good between washings!Love that angled glass! The big bank buildings never disappoint.