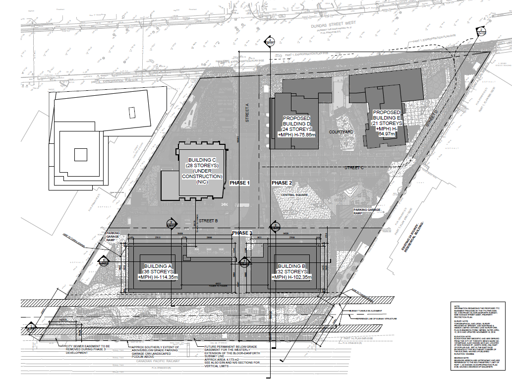
We have published a new front page story on the second condo phase at Kip, a 24-storey tower east of the first building. Quadrangle-designed Phase Two also includes a 20-storey rental tower, and several images for it and the condo have been added to the database file, linked at the top of the page. The file has also been updated with a pile of number; storeys, heights, number of suites. (@DonValleyRainbow: none of them hit the 100-metre mark.)

42
 
82c5a4b9-78f0-43cd-a250-05dde431dce8_zpsqvm0ortx.jpg

ce8d9499-2ad0-46ba-92f5-e25bf54f62ae_zpsdklujehh.jpg


Looking west from the Kip.
26550f3e-aa9a-46a4-9ce3-0a3795b05375_zpsazkqhhcp.jpg
 
Of course its under the radar - far from downtown, in a stunningly boring area, and with mediocre architecture.
 

Attachments

  • upload_2017-11-16_19-30-56.png
    upload_2017-11-16_19-30-56.png
    485.4 KB · Views: 1,122
  • upload_2017-11-16_19-31-53.png
    upload_2017-11-16_19-31-53.png
    391.6 KB · Views: 1,163
  • upload_2017-11-16_19-32-19.png
    upload_2017-11-16_19-32-19.png
    360.5 KB · Views: 1,107
This building turned out better than I thought it would ! I hope they keep the norm with the others to follow.
 

Back
Top